River Trail Models & Floorplans
At River Trail, we have multiple Models available, each offering unique configurations to meet your needs. You can find out more about these below!
Models:
Arkansas at River Trail
Enjoy vaulted ceilings, upgraded cabinets, and stainless steel appliances paired with luxury vinyl plank flooring and modern finishes in brushed nickel or oil-rubbed bronze.
Each home offers a 12' vaulted ceiling (per plan), skip trowel drywall texture, and a finished garage. Designed for easy living with low-maintenance siding and xeriscaped front landscaping.

3 Bedroom
2 Car
2 Bathroom
1,346 SF
Energy Saving Features
- 95% Efficient Furnace
- R-23 Wall Insulation
- R-49 Ceiling Insulation
- Double glazed Low-E Thermal Vinyl Windows
- 220 Garage Outlet for Electric Vehicle Charger
- 13 SEER Air Conditioner
- Programmable Thermostat
- 3kW Solar Power Package
- Energy Efficient Lighting
- ENERGY STAR Appliances
- Advanced Indoor Air management
- Air Purification System
Floorplans (Click to Enlarge)
More Photos Click to Enlarge
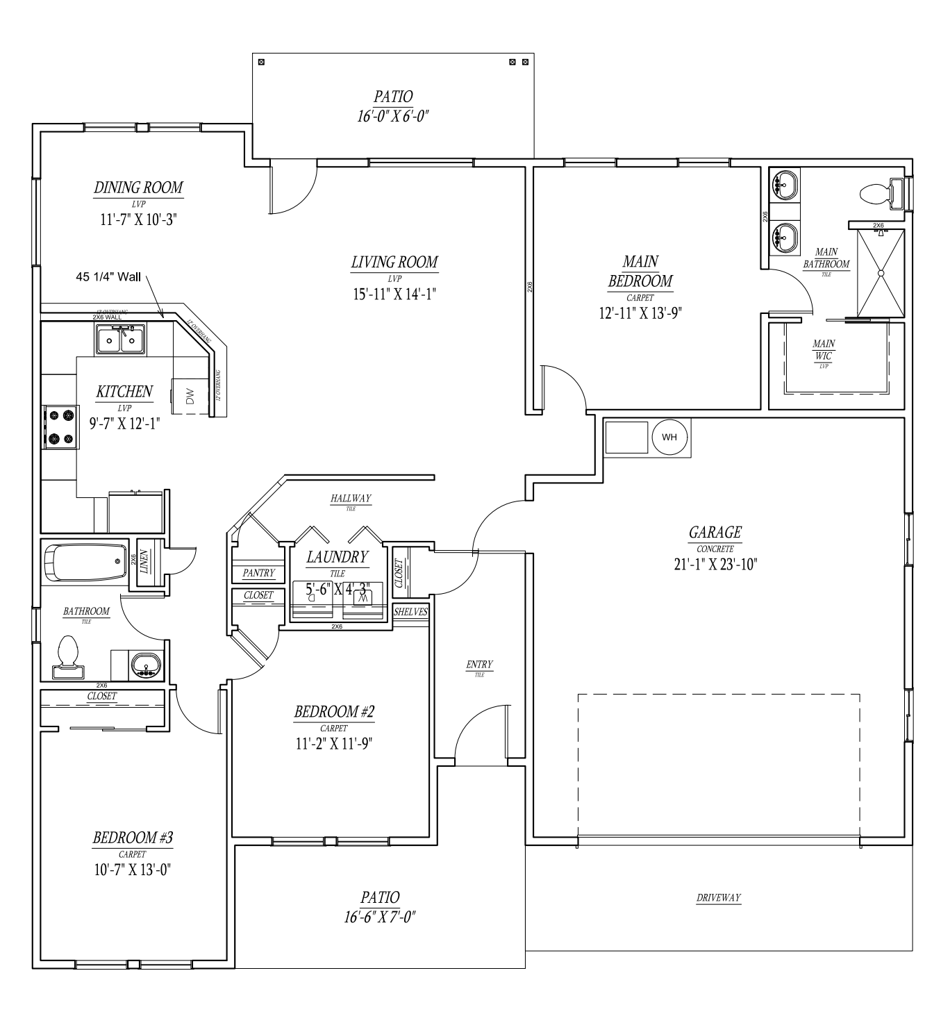
Platte at River Trail
Experience vaulted ceilings, stylish upgraded cabinets, and stainless steel appliances throughout. Each home includes luxury vinyl plank flooring, elegant brushed nickel or oil-rubbed bronze finishes, and 9' ceilings (per plan).
Built with comfort and quality in mind. Featuring skip trowel drywall texture, a fully finished garage, low-maintenance siding, and water-smart front xeriscaping.

3 Bedroom
2 Car
2 Bathroom
1,522 SF
Energy Saving Features
- 95% Efficient Furnace
- R-23 Wall Insulation
- R-49 Ceiling Insulation
- Double glazed Low-E Thermal Vinyl Windows
- 220 Garage Outlet for Electric Vehicle Charger
- 13 SEER Air Conditioner
- Programmable Thermostat
- 3kW Solar Power Package
- Energy Efficient Lighting
- ENERGY STAR Appliances
- Advanced Indoor Air management
- Air Purification System
Floorplans (Click to Enlarge)
More Photos Click to Enlarge
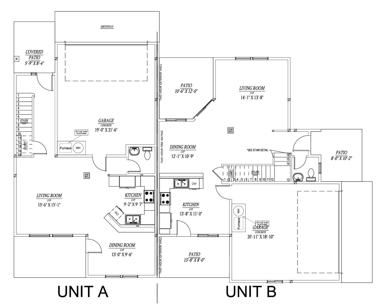
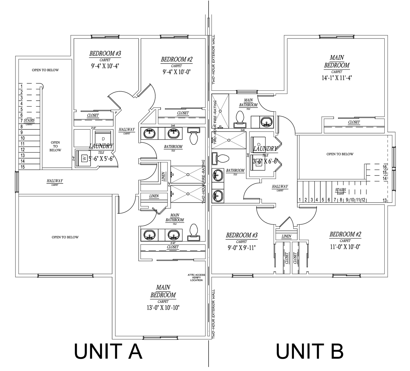
Confluence Duplex at River Trail
The Confluence Duplex at River Trail offers modern, energy-efficient living with vaulted ceilings, luxury vinyl plank flooring, stainless steel appliances, and upgraded cabinetry. Each unit includes 3 bedrooms, 2.5 bathrooms, a 2-car garage, and a 3kW solar package for added efficiency.
Located in southeast Grand Junction, the community provides quick access to the Riverfront Trail, Clifton Nature Park, Corn Lake, wineries, shops, schools, and dining. With low-maintenance siding, front xeriscape landscaping, and available RV parking, it’s a convenient and lifestyle-focused place to call home.

3 Bedroom
2 Car
3.5 Bathroom
1,407 - 1,477 SF
Energy Saving Features
- 95% Efficient Furnace
- R-23 Wall Insulation
- R-49 Ceiling Insulation
- Double glazed Low-E Thermal Vinyl Windows
- 220 Garage Outlet for Electric Vehicle Charger
- 13 SEER Air Conditioner
- Programmable Thermostat
- 3kW Solar Power Package
- Energy Efficient Lighting
- ENERGY STAR Appliances
- Advanced Indoor Air management
- Air Purification System
Floorplans (Click to Enlarge)
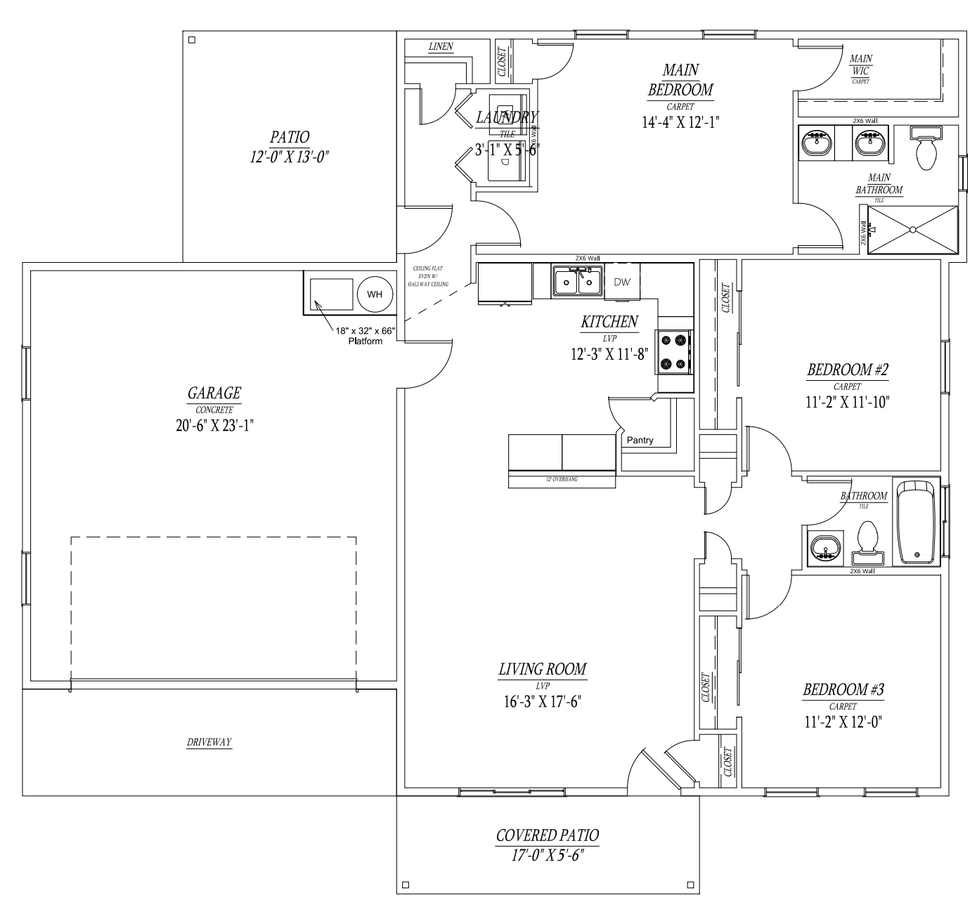
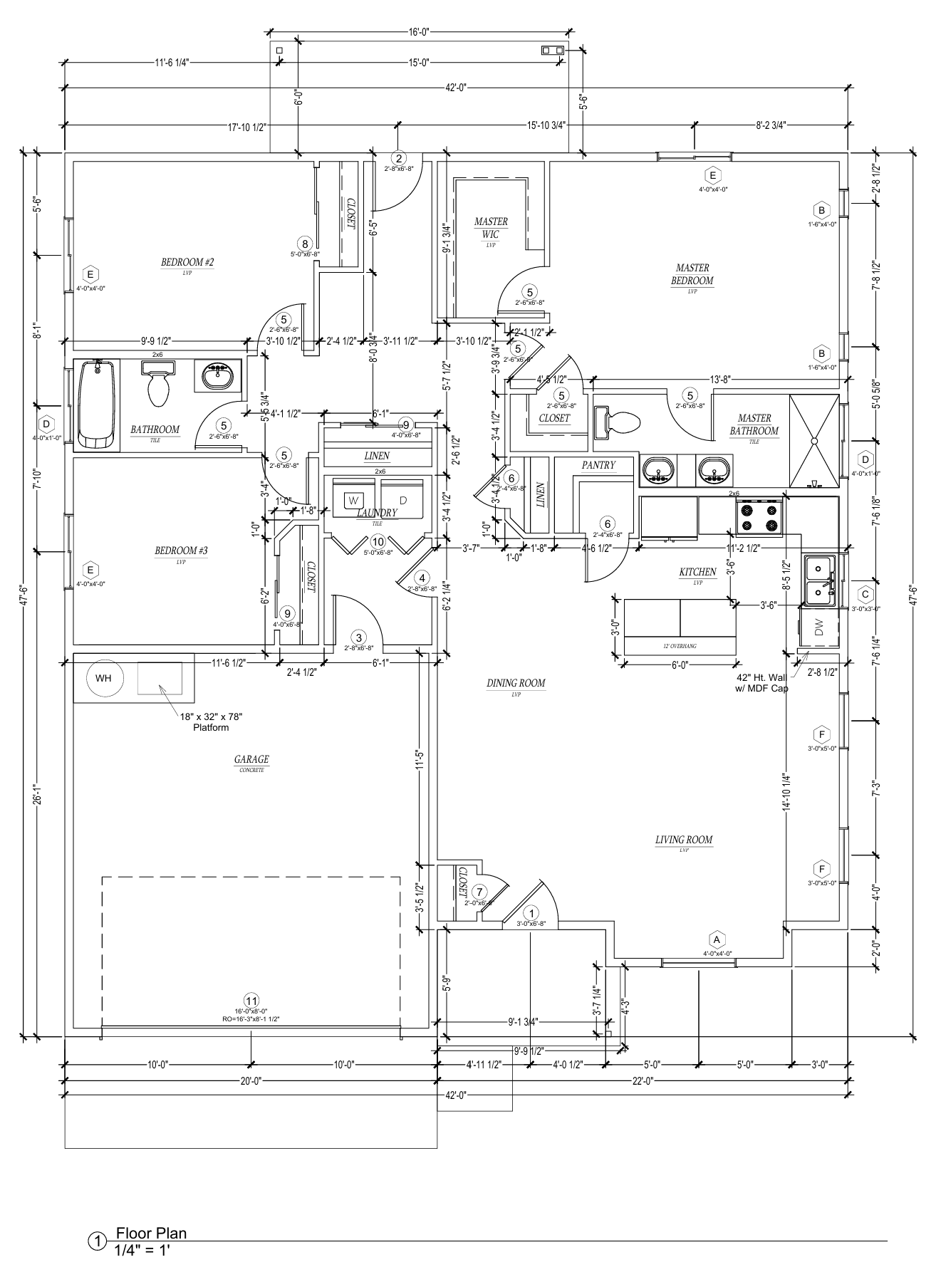
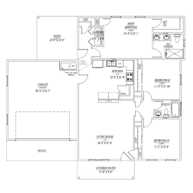
Slate at River Trail
The Slate at River Trail is a single-level, energy-efficient home featuring vaulted ceilings, luxury vinyl plank flooring, stainless steel appliances, upgraded cabinets, and 9' ceilings. With 3 bedrooms, 2 bathrooms, a 2-car garage, and a 3kW solar package, it blends comfort, style, and sustainability into one thoughtfully designed floor plan.
Located in southeast Grand Junction near trails, parks, wineries, schools, and local amenities, River Trail offers convenience and outdoor lifestyle in a covenant-protected community. Low-maintenance siding, front xeriscape landscaping, and available RV parking make this home an easy, practical choice for modern living.

3 Bedroom
2 Car
2 Bathroom
1,483 SF
Energy Saving Features
- 95% Efficient Furnace
- R-23 Wall Insulation
- R-49 Ceiling Insulation
- Double glazed Low-E Thermal Vinyl Windows
- 220 Garage Outlet for Electric Vehicle Charger
- 13 SEER Air Conditioner
- Programmable Thermostat
- 3kW Solar Power Package
- Energy Efficient Lighting
- ENERGY STAR Appliances
- Advanced Indoor Air management
- Air Purification System
Floorplans (Click to Enlarge)
Learn More
Get In Touch for a Zero Obligation Chat, and see how we can turn your dream forever home into reality!
Call us direct, or leave us a message and we'll get back to you!

Listings by Dianne Dinnel
The Grand Junction Group @ Keller Williams CO West Realty
Dianne@TheGrandJuctionGroup.com



















