Brookfield South Models & Floorplans
At Brookfield South, we have three Models available, including Primrose, Acacia and Mesa, each offering unique configurations to meet your needs. You can find out more about these below!
Models:
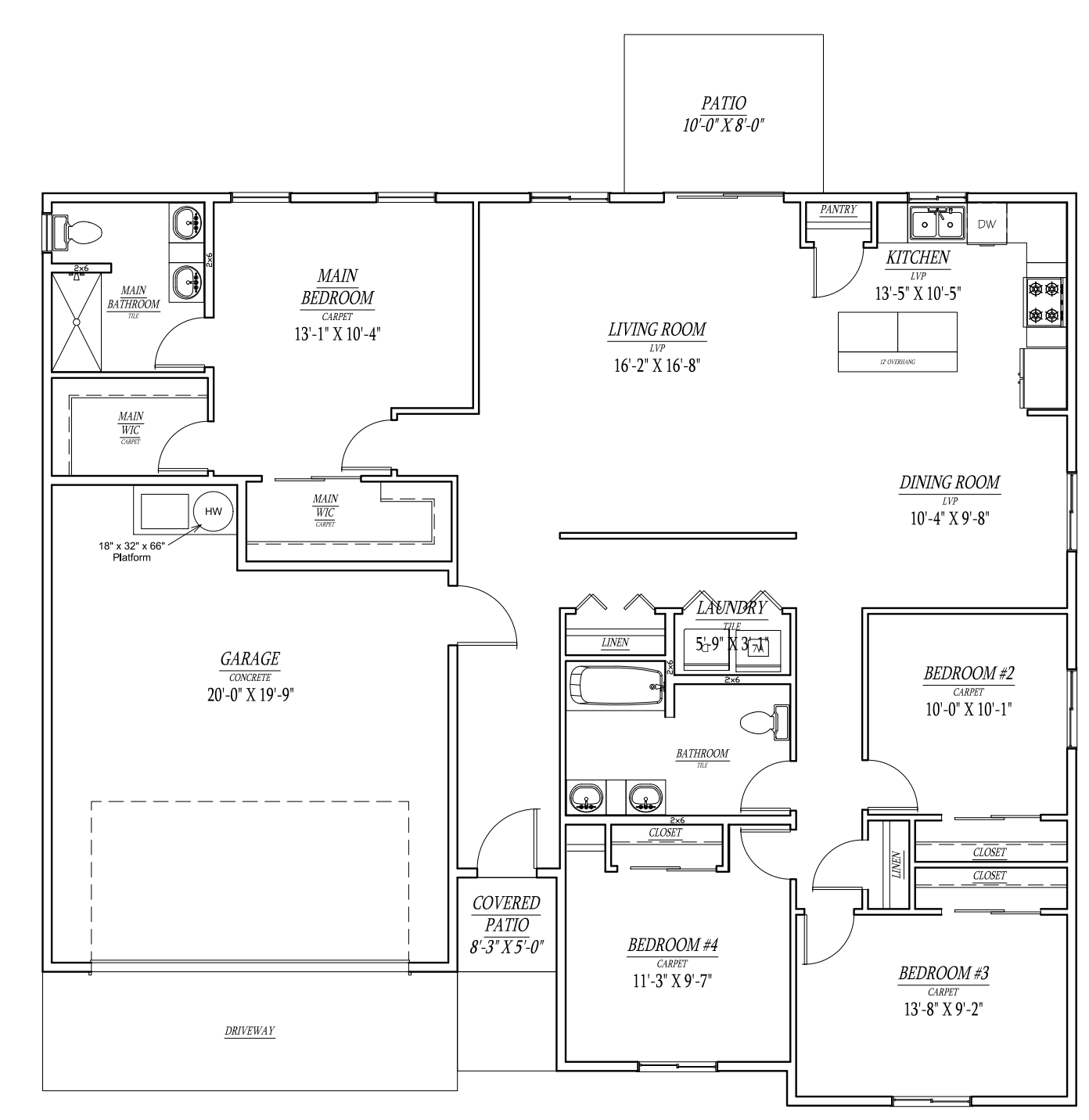
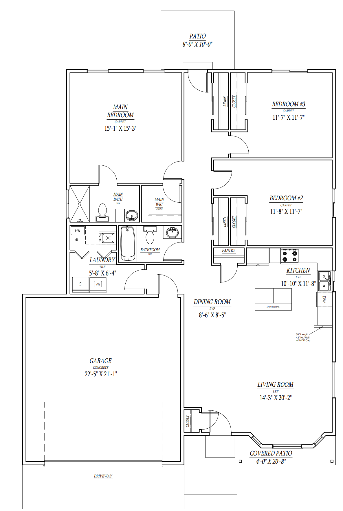
Buena Vista at Brookfield South
Our Buena Vista models feature spacious, well-designed interiors including a large living room, center-island kitchen with built-in pantry, convenient laundry/utility room, two-car garage, and a front covered patio.
The community includes covenants and pressurized irrigation, with HOA dues to be determined.
4 Bedroom
2 Cars
2 Bathroom
1,716 SF
Energy Saving Features
- Solar Powered
- Net Zero Home
- ENERGY STAR Dishwasher
- 6 Kilowatt Solar Array
- Heat Pump Water Heater
- Heat Pump Heating & AC
- Induction Oven & Range
- Upgrades & Customization Available
- Conditioned Crawl Space
- 100% LED Lighting
- ENERGY STAR Efficiency
Floorplans (Click to Enlarge)
More Photos Click to Enlarge
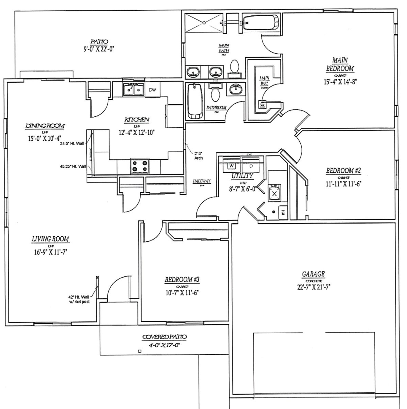
PRIMROSE at Brookfield South
Nestled in the Brookfield South community, this sleek Primrose model home blends modern design with energy-smart living. With a spacious living room, built-in pantry, and a convenient laundry room, it’s built for comfort and ease.
Outdoors, enjoy a covered front patio and a rear entertaining area for gatherings. The property also includes a three-car garage, high-efficiency windows, and sustainable energy features—this is marketed as a “Zero Energy Ready” home.

3 Bedroom
2 or 3 Car Option
2 Bathroom
1,651 SF
Energy Saving Features
- Solar Powered
- Net Zero Home
- ENERGY STAR Dishwasher
- 6 Kilowatt Solar Array
- Heat Pump Water Heater
- Heat Pump Heating & AC
- Induction Oven & Range
- Upgrades & Customization Available
- Conditioned Crawl Space
- 100% LED Lighting
Floorplans Click to Enlarge
More Photos Click to Enlarge
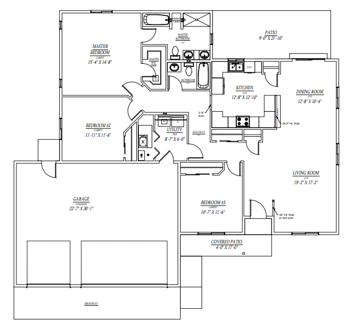
Acacia at Brookfield South
Enjoy vaulted ceilings, upgraded cabinets, and stainless steel appliances paired with luxury vinyl plank flooring and modern finishes in brushed nickel or oil-rubbed bronze.
Each home offers a 12' vaulted ceiling (per plan), skip trowel drywall texture, and a finished garage. Designed for easy living with low-maintenance siding and xeriscaped front landscaping.

3 Bedroom
2 Car
2 Bathroom
1,383 SF
Energy Saving Features
- Solar Powered
- Net Zero Home
- ENERGY STAR Dishwasher
- 6 Kilowatt Solar Array
- Heat Pump Water Heater
- Heat Pump Heating & AC
- Induction Oven & Range
- Upgrades & Customization Available
- Conditioned Crawl Space
- 100% LED Lighting
- ENERGY STAR Efficiency
Floorplans Click to Enlarge
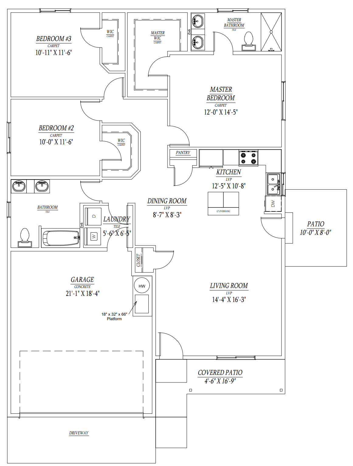
BLUE Mesa at Brookfield South
The Mesa model at Brookfield South offers a perfect balance of comfort, efficiency, and modern design. This spacious home features a large living room, center-island kitchen, built-in pantry, and covered front patio, plus a super big yard ideal for outdoor living.
Built to ENERGY STAR® standards, every Mesa home is Zero Energy Ready with all-electric, energy-efficient systems. Located in northwest Grand Junction, Brookfield South provides scenic views of the Monument and Bookcliffs, close to Mesa Mall, Community Hospital, and local dining — a sustainable lifestyle built by Senergy Builders.

3 Bedroom
2 Car
2 Bathroom
1,383 SF
Energy Saving Features
- Solar Powered
- Net Zero Home
- ENERGY STAR Dishwasher
- 6 Kilowatt Solar Array
- Heat Pump Water Heater
- Heat Pump Heating & AC
- Induction Oven & Range
- Upgrades & Customization Available
- Conditioned Crawl Space
- 100% LED Lighting
- ENERGY STAR Efficiency
Floorplans Click to Enlarge
Learn More
Get In Touch for a Zero Obligation Chat, and see how we can turn your dream forever home into reality!
Call us direct, or leave us a message and we'll get back to you!

Listings by Dianne Dinnel
The Grand Junction Group @ Keller Williams CO West Realty
Dianne@TheGrandJuctionGroup.com





















